Imagine 98

Casa individuala de vanzare Dezmir

ID: P36479 Cluj-Napoca, Exterior Est / Dezmir 4
248.000€
Descriere
Lider Imobiliare va ofera spre vanzare o casa individuala situata in Dezmir, intr-un ansamblu de case.
Proprietatea a fost finalizata in anul 2018, este structurata pe 3 nivele, D+P+E avand suprafata de 150 mp, construita din caramida.
Terenul aferent este de 504 mp.
La demisol exista garaj auto, si camera tehnica a proprietatii.
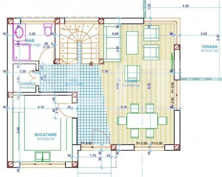
La parter avem un living, bucatarie, 1 camera, 1 baie, hol si terasa in suprafata de 13 mp.
Etajul deserveste celor 3 dormitoare , 1 baie , hol plus un balcon.
Proprietatea dispune si de pod, care are destinatia de spatiu de depozitare.
Casa se vinde mobilata si utilata, mobilier personalizat pentru optimizarea spatiului. Finisajele interioare sunt moderne, parchet,gresie si faianta, centrala cu incalzire in pardoseala la parter si cu calorifere la etaj . Sistem de supraveghere ,sistem de recirculare a apei.


Caracteristici
  • ID:P36479
  • Nr. camere:4
  • Nr. dormitoare:3
  • S. utila:150.00 mp
  • S. construita:160.00 mp
  • S. teren:504.00 mp
  • Nr. bucatarii:1
  • Nr. bai:2
  • Nr. balcoane:1
  • An constructie:2018
  • Structura rezistenta:Caramida
  • Regim inaltime:D+P+M
  • Orientare:Mixta
Specificatii
Curent
Apa
Canalizare
Gaz
Centrala proprie
Izolatie Exterior
Izolatie Interior
Bloc izolat termic
Vopsea lavabila
Parchet
Gresie
Ferestre PVC
Usa intrare Metal
Usa interior Celulare
Bucatarie Mobilata
Bucatarie Utilata
Complet mobilat
Curte
Localizare
Alexandra Dezmirean
director general
Esti interesat de aceasta proprietate ?
Proprietati similare
Imagine 1749
Casa individuala de vanzare in Floresti
Floresti, Vivo (Polus Center) 235.000€
5 camere 2 bai 113mp
Imagine 1745
Duplex modern în Florești – Eleganță, confort și priveliște panoramică
Floresti 259.000€
4 camere 3 bai 170mp
Imagine 1441
Duplex spațios de 180 mp cu mansardă și curte privată de vânzare în Florești
Floresti 235.000€ 265.000€
5 camere 2 bai 180mp
Imagine 1406
Casa insiruita Floresti
Floresti, LIDL 229.000€
4 camere 3 bai 80mp
Imagine 560
Casa individuala de vanzare cu teren de 736 mp
Jucu de Mijloc, Central 250.000€
7 camere 2 bai 150mp
Imagine 533
Duplex de vanzare Dambu Rotund
Cluj-Napoca, Dambul-Rotund 265.000€
4 camere 3 bai 135mp