Imagine 98

Apartament de vanzare cu 4 camere zona Hotel Victoria ,centru

ID: P37201 Cluj-Napoca, Centru 5
400.000€
Descriere
Lider Imobiliare vă oferă spre vânzare un apartament cu 4 camere situat în zona centrală a orașului Cluj-Napoca, pe strada 21 Decembrie 1989, într-o locație excelentă, în imediata vecinătate a Hotel Victoria, a Prefecturii Cluj, precum și a numeroaselor magazine și mijloace de transport în comun.

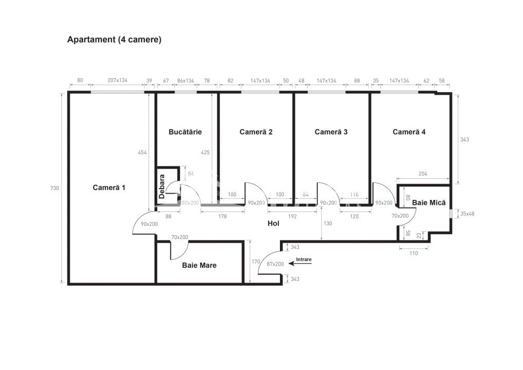
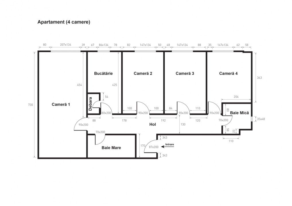
Apartamentul are o suprafață utilă de 90 mp și este compartimentat eficient, fiind compus din hol generos, bucătărie separată, living spațios, trei camere, ideale pentru dormitoare sau birou, și două băi. Configurația îl face potrivit atât pentru locuință de familie, cât și pentru activități de tip birou sau investiție, datorită poziționării centrale.

Proprietatea a fost recent modernizată și dispune de finisaje precum parchet, gresie și faianță, geamuri termopan, ușă metalică la intrare și centrală termică proprie, oferind confort și funcționalitate. Apartamentul este amplasat la etajul 2 al unui imobil cu regim redus de înălțime, având 3 etaje, ceea ce asigură un plus de intimitate.

Un avantaj important al proprietății este existența unui loc de parcare în curtea interioară a imobilului, un beneficiu rar întâlnit în zona centrală a orașului. Apartamentul este luminos, beneficiind de orientare sudică, ceea ce asigură lumină naturală pe tot parcursul zilei.

Datorită amplasării pe strada 21 Decembrie, proprietatea oferă acces rapid către centrul orașului, instituții publice, zone comerciale și principalele artere de transport, fiind o alegere excelentă pentru cei care își doresc un apartament spațios în centrul municipiului Cluj-Napoca.

Pentru mai multe informații sau pentru programarea unei vizionări, vă invităm să ne contactați.
Caracteristici
  • ID:P37201
  • Nr. camere:4
  • Nr. dormitoare:3
  • S. utila:90.00 mp
  • S. construita:100.00 mp
  • Comp.:Decomandat
  • Confort:Lux
  • Etaj:Etaj 2
  • Nr. bucatarii:1
  • Nr. bai:2
  • Nr. parcari:1
  • An constructie:1980
  • Structura:Caramida
  • Tip imobil:Bloc
  • Regim inaltime:D+P+3
  • Orientare:Sud
Specificatii
Curent
Apa
Canalizare
Termoficare
Parchet
Gresie
Ferestre PVC
Usa intrare Metal
Usa interior Lemn
Apometre
Contor caldura
Nemobilat
Interfon
Acoperis
Curte comuna
Localizare
Alexandra Dezmirean
director general
Esti interesat de aceasta proprietate ?
Proprietati similare
Imagine 4728
Apartament cu 3 camere de vanzare zona The Office, imobil nou finisat
Cluj-Napoca, Marasti 365.000€
3 camere 2 bai 88mp
Imagine 4131
Apartament cu 3 camere de vanzare strada Mihai Romanul
Cluj-Napoca, Buna-Ziua 360.000€
3 camere 2 bai 94mp
Imagine 3502
Apartament cu 3 camere de vanzare, gradina, parcare imobil nou Buna Ziua
Cluj-Napoca, Buna-Ziua 380.000€
3 camere 2 bai 75mp
Imagine 3186
Apartament 4 camere Centru etaj 1
Cluj-Napoca, Centru 440.000€ 450.000€
4 camere 2 bai 120mp
Imagine 3147
Apartament 3 camere imobil nou Zona Calea Turzii
Cluj-Napoca, Buna-Ziua 347.000€
3 camere 3 bai 90mp
Imagine 2882
Apartament de vanzare cu 3 dormitoare Ansamblu modern zona semicentrala
Cluj-Napoca, Semicentral 390.000€ 415.000€
4 camere 2 bai 84mp