




Lider Imobiliare vă oferă spre vânzare un apartament spațios cu 4 camere, situat în zona centrală a orașului Cluj-Napoca, pe strada Eroilor, într-un imobil cu regim redus de înălțime, de doar 2 etaje. Poziționarea excelentă asigură acces rapid către principalele puncte de interes ale orașului, instituții, zone comerciale, restaurante și mijloace de transport în comun.
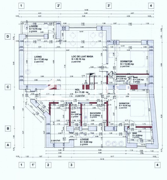
Apartamentul are o suprafață generoasă de 123 mp și o compartimentare eficientă, ideală pentru o familie sau pentru cei care își doresc confort și spațiu în centrul orașului. Locuința este compusă din hol de acces, bucătărie separată, living luminos, două dormitoare matrimoniale fiecare cu baie proprie, un dormitor destinat copiilor sau birou și o baie suplimentară. Compartimentarea oferă intimitate, funcționalitate și un nivel ridicat de confort.
Proprietatea beneficiază de finisaje moderne, parchet de calitate, gresie și faianță, ferestre cu geam termopan, ușă metalică la intrare și centrală termică proprie. În plus, apartamentul este dotat cu aer condiționat, asigurând un climat plăcut pe tot parcursul anului.
Datorită amplasării centrale, suprafeței generoase și compartimentării bine gândite, acest apartament reprezintă o oportunitate excelentă atât pentru locuință proprie, cât și pentru investiție. Este alegerea ideală pentru cei care își doresc un apartament modern, spațios și bine poziționat, în inima Clujului.