Imagine 98

Apartament de vanzare imobil nou zona strazii Calea Turzii

Aceasta proprietate a fost deja vanduta! Pentru oferte similare contactati agentul
ID: P40134 Cluj-Napoca, Zorilor 2
215.000€
Descriere
Se oferă spre vânzare un apartament cu 3 camere , situat pe strada Mihai Românul din Cluj-Napoca, într-un imobil modern, bine întreținut, prevăzut cu două lifturi. Apartamentul este amplasat la etajul 7 din 9 și beneficiază de orientare sud-vest, ceea ce asigură lumină naturală pe tot parcursul zilei și un confort sporit.

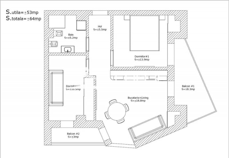
Locuința are o suprafață utilă de 53 mp, la care se adaugă două balcoane cu suprafețe de 8 mp, respectiv 3 mp, rezultând o suprafață totală de aproximativ 64 mp. Compartimentarea este eficientă și practică, fiind formată din hol de acces, două dormitoare, baie, living cu bucătărie open-space și două balcoane generoase, ideale pentru relaxare sau spații de depozitare.

Apartamentul este finisat modern și se vinde complet utilat și mobilat, beneficiind de geamuri tripan, centrală termică proprie, încălzire în pardoseală, parchet, gresie și faianță de calitate. Mobilierul este realizat la comandă, iar electrocasnicele sunt de bună calitate, locuința fiind pregătită pentru mutare imediată, fără investiții suplimentare.

Imobilul dispune de parc privat cu loc de joacă pentru copii și spații comerciale la parter, oferind un stil de viață comod și sigur. Zona este bine conectată la rețeaua de transport public, cea mai apropiată stație fiind situată la aproximativ 7 minute de mers pe jos. Proprietatea este ideală atât pentru locuință personală, cât și pentru investiție, datorită cererii ridicate din zonă.

Opțional, se poate achiziționa un loc de parcare în subteranul imobilului, la prețul de 20.000 euro.
Caracteristici
  • ID:P40134
  • Nr. camere:3
  • Nr. dormitoare:2
  • S. utila:55.00 mp
  • S. balcoane:8.30 mp
  • S. construita:64.00 mp
  • Comp.:Semidecomandat
  • Confort:1
  • Etaj:Etaj 7
  • Nr. bucatarii:1
  • Nr. bai:1
  • Nr. balcoane:2
  • Pret parcare:20.000€
  • An constructie:2023
  • Structura:Caramida
  • Tip imobil:Bloc
  • Regim inaltime:P+9
  • Orientare:Sud-Vest
Specificatii
Curent
Apa
Canalizare
Gaz
Centrala proprie
Izolatie Exterior
Izolatie Interior
Bloc izolat termic
Vopsea lavabila
Faianta
Parchet
Gresie
Ferestre PVC
Usa intrare Metal
Usa interior Lemn
Bucatarie Mobilata
Bucatarie Utilata
Apometre
Contor caldura
Contor gaz
Complet mobilat
Interfon
Videointerfon
Lift
Acoperis
Localizare
Alexandra Dezmirean
director general
Esti interesat de aceasta proprietate ?
Proprietati similare
TOP Imagine 4802
Vânzare apartament 2 camere ultracentral Cluj Napoca strada Horea ultrafinisat
Cluj-Napoca, Centru 188.500€
2 camere 1 baie 44mp
TOP Imagine 4027
Apartament cu 2 camere de vanzare Ansamblul Grand Park,parcare
Cluj-Napoca, Gheorgheni 205.000€ 220.000€
2 camere 1 baie 55mp
TOP Imagine 3975
Vânzare Apartament 3 Camere Decomandat Gheorgheni Strada Muncitorilor | 2 Băi
Cluj-Napoca, Gheorgheni 210.000€ 215.000€
3 camere 2 bai 63mp
TOP Imagine 3964
Apartament modern cu parcare subterană , finisat si mobilat, de vanzare
Cluj-Napoca, Centru 215.900€
2 camere 1 baie 42.50mp
TOP Imagine 3830
Apartament 2 camere ultracentral, Piața Mihai Viteazu,vedere spre statuie
Cluj-Napoca, Centru 224.000€ 228.000€
2 camere 1 baie 50mp
TOP Imagine 3764
Vânzare Apartament 58mp Calea Dorobanților | Ideal Birou sau Cabinet,parcare
Cluj-Napoca, Centru 219.000€ 220.000€
2 camere 1 baie 58mp