



















Lider Imobiliare va oferă spre vânzare un apartament modern cu 3 camere, situat într-un imobil nou pe strada Augustin Presecan, în apropiere de Centrul Comercial Sigma, la etajul 4 al unei clădiri cu regim de înălțime P+4 cu lift.
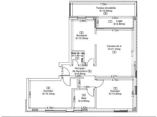
Locuința are o suprafață utilă de 75 mp și este compartimentată în living cu bucătărie open space, două dormitoare, două băi și o terasă generoasă de 15 mp, ideală pentru relaxare.
Apartamentul dispune de finisaje interioare moderne, precum parchet, gresie, faianță, geamuri termopan, ușă metalică, centrală termică proprie și sistem de încălzire în pardoseală, oferind confort și eficiență energetică. Se vinde complet mobilat și utilat, fiind gata pentru mutare sau investiție.
Opțional, se poate achiziționa și un loc de parcare subteran, la prețul de 15.000 euro. Zona este liniștită, cu acces facil către puncte de interes, magazine, parcuri și mijloace de transport în comun. Pentru mai multe detalii sau pentru programarea unei vizionări, vă invităm să ne contactați.