Imagine 98

Apartament 2 camere mobilat imobil nou zona Sigma Zorilor

ID: P22503 Cluj-Napoca, Zorilor 80
214.900€ 220.000€
Descriere
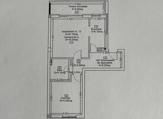
Vă prezentăm o oportunitate deosebită de achiziție a unui apartament cu două camere situat într-un imobil nou finalizat in anul 2018 pe strada Augustin Presecan. Proprietatea este poziționată la etajul 4,al unui imobil cu 4 etaje cu lift, oferind o perspectivă degajată și un nivel ridicat de intimitate față de agitația străzii. Cu o suprafață utilă de 51,7 metri pătrați, locuința este proiectată modern, punând accent pe eficiența spațiului și pe un design interior contemporan care să satisfacă cele mai exigente gusturi.

Apartamentul beneficiază de o compartimentare inteligentă hol la intrare bucatarie, living dormitor și de dotări premium, printre care se numără o baie spațioasă prevăzută cu geam pentru o ventilație naturală optimă. Un punct forte al acestei proprietăți este balconul generos de 8,80 metri pătrați, un spațiu ideal pentru relaxare în aer liber. Orientarea mixtă de tip sud nord asigură o luminozitate excelentă pe tot parcursul zilei și o atmosferă primitoare în fiecare încăpere. Locuința este finisată modern și se vinde complet mobilată și utilată cu electrocasnice de ultimă generație, fiind gata pentru mutare imediată fără a mai necesita nicio investiție suplimentară d

Localizarea pe strada Augustin Presecan într-un imobil nou garantează un standard de locuire ridicat, beneficiind de spații comune îngrijite și de o comunitate de vecini selectă. Accesul către punctele de interes major, centrele comerciale și zonele de birouri este facil, transformând acest apartament de 51,7 metri pătrați într-o alegere strategică atât pentru o locuință personală, cât și pentru o investiție imobiliară profitabilă. Vă invităm să programați o vizionare pentru a descoperi personal calitatea finisajelor și confortul oferit de acest apartament luminos și modern.
Caracteristici
  • ID:P22503
  • Nr. camere:2
  • Nr. dormitoare:1
  • S. utila:51.70 mp
  • S. balcoane:8.80 mp
  • S. construita:60.00 mp
  • Comp.:Semidecomandat
  • Confort:1
  • Etaj:Etaj 5
  • Nr. bucatarii:1
  • Nr. bai:1
  • Nr. balcoane:1
  • An constructie:2018
  • Structura:Caramida
  • Tip imobil:Bloc
  • Regim inaltime:D+P+5
  • Orientare:Nord-Sud
Specificatii
Curent
Apa
Canalizare
Gaz
Centrala proprie
Izolatie Exterior
Izolatie Interior
Bloc izolat termic
Vopsea lavabila
Faianta
Parchet
Gresie
Ferestre PVC
Usa intrare Metal
Usa interior Lemn
Bucatarie Mobilata
Bucatarie Utilata
Apometre
Contor caldura
Contor gaz
Complet mobilat
Interfon
Lift
Acoperis
Localizare
Alexandra Dezmirean
director general
Esti interesat de aceasta proprietate ?
Proprietati similare
TOP Imagine 7494
Apartament modern de vanzare cu parcare, inchiriat,imobil nou Zorilor
Cluj-Napoca, Zorilor 188.000€
2 camere 1 baie 48mp
TOP Imagine 6782
Sophia Residence, etaj 6- cand Clujul se vede altfel de sus!
Cluj-Napoca, Buna-Ziua 199.000€ 200.000€
2 camere 1 baie 41mp
TOP Imagine 6287
Apartament 3 camere renovat 2022, mobilat modern, orientare estica Gheorgheni
Cluj-Napoca, Gheorgheni 229.000€ 239.000€
3 camere 1 baie 60mp
TOP Imagine 5782
Apartament 3 camere decomandat,renovat,garaj si beci,Zorilor
Cluj-Napoca, Zorilor 219.900€ 245.000€
3 camere 2 bai 67mp
TOP Imagine 5447
Apartament 4 camere de vânzare în Mănăștur, strada Grigore Alexandrescu, finisat
Cluj-Napoca, Manastur 239.000€ 249.980€
4 camere 2 bai 77mp
TOP Imagine 4802
Vânzare apartament 2 camere ultracentral Cluj Napoca strada Horea ultrafinisat
Cluj-Napoca, Centru 183.200€ 188.500€
2 camere 1 baie 44mp