










Lider Imobiliare vă propune spre vânzare un apartament cu 2 camere situat într-un imobil nou, finalizat în anul 2018, pe strada Valea Gârbăului. Locația este strategic aleasă pentru cei care își doresc proximitatea față de principalele puncte comerciale și medicale din zona de vest a orașului, fiind situat la doar câteva minute de Vivo Mall, Clinica Amethyst, Metro, Momax și unități de învățământ.
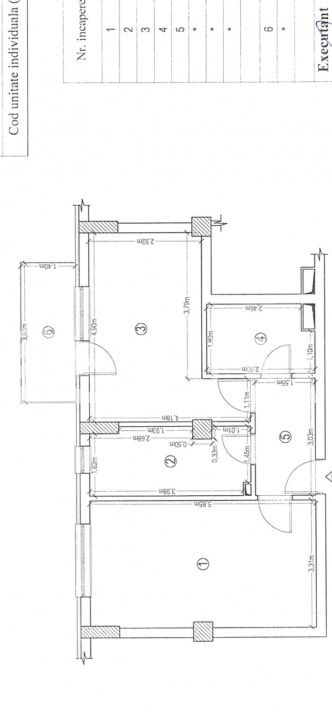
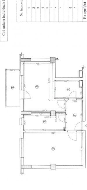
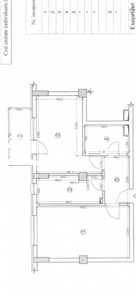
Proprietatea ocupă o suprafață utilă de 52 mp și este poziționată la etajul 3 al unui imobil cu 4 niveluri, dotat cu lift. Compartimentarea de tip semidecomandat a fost gândită pentru a maximiza spațiul și funcționalitatea, interiorul fiind organizat într-o zonă de zi generoasă care include bucătăria și livingul, un dormitor primitor dotat cu un dressing spațios, o baie modernă și un balcon generos. Orientarea vestică reprezintă un atu important, asigurând lumină naturală din abundență pe parcursul după-amiezii și o atmosferă caldă în întreaga locuință.
Finisajele interioare sunt de actualitate, fiind realizate cu materiale atent selecționate pentru a asigura un standard ridicat de confort. Apartamentul dispune de parchet de calitate, gresie și faianță modernă, ferestre cu geam termopan, ușă metalică la intrare și sistem de încălzire propriu cu centrală termică. Locuința se vinde complet mobilată și utilată, beneficiind de mobilier personalizat, realizat la comandă pentru a utiliza eficient fiecare colț al apartamentului.
Un beneficiu major inclus în prețul de vânzare este locul de parcare situat în garajul subteran al imobilului, oferind siguranță și confort indiferent de anotimp. Această proprietate reprezintă o opțiune ideală pentru tineri profesioniști sau cupluri care caută o locuință modernă, gata de mutat, într-o zonă aflată în plină dezvoltare. Pentru informații suplimentare și programări la vizionare, echipa Lider Imobiliare vă stă la dispoziție cu toate detaliile necesare.