Imagine 98

Apartament 2 camere ultracentral, Piața Mihai Viteazu,vedere spre statuie

ID: P40246 Cluj-Napoca, Centru 6
224.000€ 228.000€
Descriere
Lider Imobiliare vă propune spre vânzare un apartament cu 2 camere situat ultracentral în Piața Mihai Viteazu, una dintre cele mai căutate zone din Cluj-Napoca. Proprietatea beneficiază de un avantaj rar pe piața imobiliară: vedere directă și neobstrucționată către statuia lui Mihai Viteazul, oferind un cadru urban spectaculos chiar din locuință.

Poziționarea ultracentrală asigură acces imediat către puncte de interes esențiale, precum Cinema Florin Piersic, magazine, piață agroalimentară, farmacii, restaurante și multiple linii de transport în comun, un avantaj important atât pentru locuire, cât și pentru investiție.

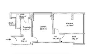
Apartamentul este situat la etajul 2 al unui imobil solid cu 8 etaje, dotat cu lift, și are o suprafață utilă de 50 mp, compartimentată eficient. Locuința este compusă din hol de acces, bucătărie separată cu cămară de alimente, două camere luminoase, baie cu geam pentru ventilație naturală și două balcoane. Balconul deschis oferă o perspectivă excelentă asupra centrului orașului, iar balconul închis asigură un plus de liniște și izolare fonică, fiind ideal pentru relaxare sau spațiu de lucru.

Apartamentul dispune de finisaje moderne, incluzând parchet, gresie și faianță, ferestre termopan și ușă metalică la intrare. Confortul termic este asigurat de centrala termică proprie și de sistemul de aer condiționat. Proprietatea se vinde parțial mobilată și utilată, oferind viitorului proprietar posibilitatea de personalizare în funcție de preferințe.

Datorită poziției ultracentrale și a compartimentării eficiente, apartamentul este ideal atât ca locuință personală, cât și ca investiție sigură, cu potențial ridicat pentru închiriere pe termen lung sau în regim hotelier. Proprietățile cu vedere directă în Piața Mihai Viteazu sunt rare și se tranzacționează rapid.

Vă invităm să ne contactați pentru programarea unei vizionări și pentru a descoperi personal una dintre cele mai atractive oportunități imobiliare din centrul Clujului.
Caracteristici
  • ID:P40246
  • Nr. camere:2
  • Nr. dormitoare:1
  • S. utila:50.00 mp
  • S. construita:60.00 mp
  • Comp.:Semidecomandat
  • Confort:1
  • Etaj:Etaj 2
  • Nr. bucatarii:1
  • Nr. bai:1
  • Nr. balcoane:2
  • An constructie:1975
  • Structura:Beton
  • Tip imobil:Bloc
  • Regim inaltime:D+P+8
  • Orientare:Nord-Vest
Specificatii
Curent
Apa
Canalizare
Gaz
Centrala proprie
Aer conditionat
Bloc izolat termic
Vopsea lavabila
Faianta
Parchet
Gresie
Ferestre PVC
Usa intrare Metal
Usa interior Lemn
Bucatarie Partial mobilata
Bucatarie Partial utilata
Apometre
Contor caldura
Partial mobilat
Interfon
Lift
Acoperis
Localizare
Alexandra Dezmirean
director general
Esti interesat de aceasta proprietate ?
Proprietati similare
TOP Imagine 4027
Apartament cu 2 camere de vanzare Ansamblul Grand Park,parcare
Cluj-Napoca, Gheorgheni 205.000€ 220.000€
2 camere 1 baie 55mp
TOP Imagine 3975
Vânzare Apartament 3 Camere Decomandat Gheorgheni Strada Muncitorilor | 2 Băi
Cluj-Napoca, Gheorgheni 215.000€
3 camere 2 bai 63mp
TOP Imagine 3964
Apartament modern cu parcare subterană , finisat si mobilat, de vanzare
Cluj-Napoca, Centru 215.900€
2 camere 1 baie 42.50mp
TOP Imagine 3764
Vânzare Apartament 58mp Calea Dorobanților | Ideal Birou sau Cabinet,parcare
Cluj-Napoca, Centru 219.000€ 220.000€
2 camere 1 baie 58mp
TOP Imagine 3494
Apartament 4 camere renovat, mobilat și utilat | Mănăștur – Baza Sportivă
Cluj-Napoca, Manastur 215.000€
4 camere 1 baie 64mp
TOP Imagine 1
Apartament luminos și modern în Borhanci, cu 2 dormitoare, mobilat și utilat
Cluj-Napoca, Borhanci 237.000€ 242.000€
3 camere 2 bai 70mp